住まいのことなら実績豊かな藤田工務店へ



実例
  新築
土地
中古


会社概要


お問合せ


トップページ


藤田工務店の住まいへの思い

安芸郡熊野町/一戸建て/2,740万円 売約済

所在地:広島県安芸郡熊野町出来庭5丁目 土地面積:168.11m2
用途地域:建ぺい率60%、容積率200% 建物面積:110.95m2
交通:中溝バス停歩1分 完成:平成30年11月

備考:
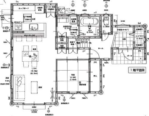
間取り:1F 19.5LDK、6和、SIC
2F 8洋、6洋、5.5洋、WIC
   トイレ
ウォークインクローゼット、シューズインクローゼット、駐車場:3台可
JA安芸熊野支店徒歩1分、
ローソン熊野中溝三丁目店徒歩2分

水道・下水分担金:約25万円別途要
道路面積(地番:2011-24):119m2・持分1/4























建築工事・設計・施工一式 有限会社藤田工務店
〒広島県安芸郡熊野町萩原3丁目4-35号 TEL:082-854-5128 FAX:082-854-8115
E-mail:info@e-fujitakoumuten.com
URL:http://www.e-fujitakoumuten.com/